sg-crest
Hotlines
  • 995

    Fire Engine / Ambulance

  • 1777

    Non-Emergency Ambulance

  • Fire Hazard Reporting

    1800 280 0000

  • General Enquiries

    1800 286 5555

  • 995

    Fire Engine / Ambulance

  • 1777

    Non-Emergency Ambulance

Legend: Explanations & Illustrations Rationale Note Figures & Tables Revision history

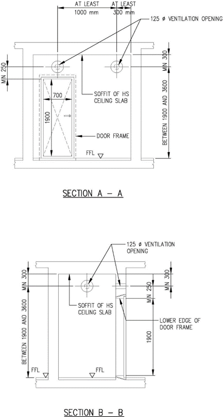
Clause 4.2 Position

The position of each ventilation sleeve shall comply with the following. See FIGURE 4.2(a) and (b).

F

a. The height of each opening of ventilation sleeve, measured from the centre of the opening to internal FFL of the HS shall be between 1900mm and 3600mm.

b. The ventilation sleeve shall be positioned such that there is sufficient clearance from any structural elements and services, and not to be located in areas such as toilets, bathroom. The centre of the ventilation sleeve to the soffit of ceiling and the nearest face of the internal HS walls shall be at least 300mm. In addition, there shall be a minimum unobstructed distance of at least 700mm from the face of the ventilation sleeve openings to the nearest face of any other internal structural elements within the HS. See Figure 2.10.

F

c. Where the ventilation sleeve is placed above or adjacent to the HS door frame, the centre of the ventilation sleeve shall be at least 250mm from the nearest edge of the door frame.

d. The shortest distance between the centres of the two ventilation sleeves shall be at least 1000mm.