sg-crest
Hotlines
  • 995

    Fire Engine / Ambulance

  • 1777

    Non-Emergency Ambulance

  • Fire Hazard Reporting

    1800 280 0000

  • General Enquiries

    1800 286 5555

  • 995

    Fire Engine / Ambulance

  • 1777

    Non-Emergency Ambulance

Legend: Explanations & Illustrations Rationale Note Figures & Tables Revision history

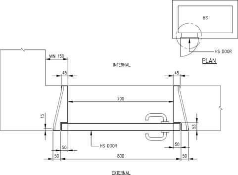
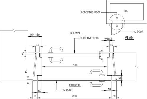
Clause 5.1 General

The HS door shall provide an airtight closure to the HS and shall be designed to open outwards from the HS.

HS door frame that is cast together with the HS wall shall have single or double door rebate. See FIGURE 2.5.1(a) and FIGURE 2.5.1(b).

F