sg-crest
Hotlines
  • 995

    Fire Engine / Ambulance

  • 1777

    Non-Emergency Ambulance

  • Fire Hazard Reporting

    1800 280 0000

  • General Enquiries

    1800 286 5555

  • 995

    Fire Engine / Ambulance

  • 1777

    Non-Emergency Ambulance

Legend: Explanations & Illustrations Rationale Note Figures & Tables Revision history

Clause 2.2 Size of HS

2.2.1 Area and Volume

a. The maximum internal length of any floor and roof slab of a HS shall be 4000mm. The minimum internal width of a HS shall be 1200mm. The internal length and width of HS walls shall be designed with an increment of 50mm. See FIGURE 2.2.1(a).

F

b. If the configuration of HS on plan is rectangular or square, the minimum internal floor area and minimum internal volume of a HS shall be in accordance with TABLE 2.2.1(b)

F

c. If the configuration of HS on plan is trapezoidal or L-shaped, the minimum internal floor area, minimum internal volume of a HS and the number of 0.6 m x 0.6 m square units shall be as specified in TABLE 2.2.1(c) and as illustrated in FIGURE 2.2.1(a).

F

d. The maximum internal floor area of a HS shall be 4.8m2. Internal floor area exceeding 4.8m2 may be allowed subject to the approval from the relevant authority.

2.2.2 Height

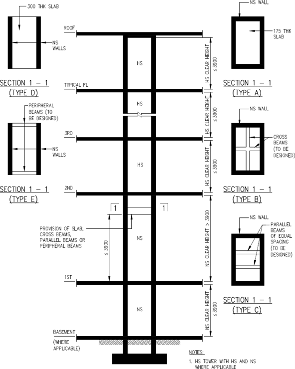
a. The minimum and maximum HS clear height shall be 2400 mm and 3900 mm respectively. See FIGURE 2.2.2(a).

F

b. The maximum NS clear height shall be 3900 mm. Where NS clear height is more than 3900 mm, intermediate RC slab or RC beams shall be provided. The RC beams shall be designed with at least equivalent stiffness to RC slab. If the NS is designed with 2 walls, RC beams shall be provided at the peripheral of NS. See FIGURE 2.2.2(b).

F