2.3.1 Wall Thickness of HS and NS
a. The minimum HS and NS wall thickness shall be in accordance with TABLE 2.3.1(a) for landed development and TABLE 2.3.1(b) for non-landed development.
F
Figures & Tables
TABLE 2.3.1(a) MINIMUM HS AND NS WALL THICKNESS (FOR LANDEDDEVELOPMENTS)
TABLE 2.3.1(a) MINIMUM HS AND NS WALL THICKNESS (FOR LANDEDDEVELOPMENTS) |
Storey Height (SH) (mm) |
HS Clear Height (mm) |
Setback Distance of HS Wall(mm) |
Wall Thickness (mm) |
HT ≤ 4000 |
2400 ≤ Ht ≤ 3900 |
≤ 6000mm |
250 |
> 6000mm |
200 |
4000 < Ht ≤ 6000 |
2400 ≤ Ht ≤ 3900 |
≤ 7000mm |
250 |
> 7000mm |
200 |
6000 < Ht ≤ 8000 |
2400 ≤ Ht ≤ 3900 |
≤ 8000mm |
250 |
> 8000mm |
200 |
8000 < Ht ≤ 10000 |
2400 ≤ Ht ≤ 3900 |
≤ 9000mm |
250 |
> 9000mm |
200 |
TABLE 2.3.1(b) MINIMUM HS AND NS WALL THICKNESS (FOR NON-LANDED DEVELOPMENTS)
TABLE 2.3.1(b) MINIMUM HS AND NS WALL THICKNESS
(FOR NON-LANDED DEVELOPMENTS)
|
Storey Height (SH) (mm) |
HS Clear Height (mm) |
Setback Distance of HS Wall(mm) |
Wall Thickness (mm) |
Ht ≤ 4000 |
2400 ≤ Ht ≤ 3400 |
≤ 6000 |
250 |
> 6000 |
200 |
3000 < Ht ≤ 3200 |
≤ 6000 |
275 |
> 6000 |
225 |
3200 < Ht ≤ 3900 |
≤ 6000 |
300 |
> 6000 |
250 |
4000 < Ht ≤ 6000 |
2400 ≤ Ht ≤ 3000 |
≤ 7000 |
250 |
> 7000 |
200 |
3000 < Ht ≤ 3200 |
≤ 7000 |
275 |
> 7000 |
225 |
3200 < Ht ≤ 3900 |
≤ 7000 |
300 |
> 7000 |
250 |
6000 < Ht ≤ 8000 |
2400 ≤ Ht ≤ 3000 |
≤ 8000 |
250 |
> 8000 |
200 |
3000 < Ht ≤ 3200 |
≤ 8000 |
275 |
> 8000 |
225 |
3200 < Ht ≤ 3900 |
≤ 8000 |
300 |
> 8000 |
250 |
8000 < Ht ≤ 10000 |
2400 ≤ Ht ≤ 3000 |
≤ 9000 |
250 |
> 9000 |
200 |
3000 < Ht ≤ 3200 |
≤ 9000 |
275 |
> 9000 |
225 |
3200 < Ht ≤ 3900 |
≤ 9000 |
300 |
> 9000 |
250 |
b. Wall thickness of any HS or NS within the HS tower shall not be less than the wall thickness of the HS or NS above it.
c. The minimum thickness of the internal common wall between two adjacent HS for non-landed and landed cluster housing developments shall be 200mm thick. See FIGURE 2.3.1(c).
F
d. For landed developments where the two HS are abutting each other, the common wall shall be cast as two separate adjoining walls. See FIGURE2.3.1(d).
F
e. The minimum thickness of the basement HS wall facing a reinforced concrete basement storey wall without any opening within the influence zone shall be 200mm. See FIGURE 2.4.6(a) and (b).
F
f. The minimum thickness of the basement HS wall which is in direct contact with earth throughout its entire height shall be in accordance with FIGURE 2.4.6(c).
F
g. The minimum thickness of the basement HS wall facing a reinforced concrete basement storey wall with opening within the influence zone shall be in accordance with TABLE 2.3.1(a).
F
Figures & Tables
TABLE 2.3.1(a) MINIMUM HS AND NS WALL THICKNESS (FOR LANDEDDEVELOPMENTS)
TABLE 2.3.1(a) MINIMUM HS AND NS WALL THICKNESS (FOR LANDEDDEVELOPMENTS) |
Storey Height (SH) (mm) |
HS Clear Height (mm) |
Setback Distance of HS Wall(mm) |
Wall Thickness (mm) |
HT ≤ 4000 |
2400 ≤ Ht ≤ 3900 |
≤ 6000mm |
250 |
> 6000mm |
200 |
4000 < Ht ≤ 6000 |
2400 ≤ Ht ≤ 3900 |
≤ 7000mm |
250 |
> 7000mm |
200 |
6000 < Ht ≤ 8000 |
2400 ≤ Ht ≤ 3900 |
≤ 8000mm |
250 |
> 8000mm |
200 |
8000 < Ht ≤ 10000 |
2400 ≤ Ht ≤ 3900 |
≤ 9000mm |
250 |
> 9000mm |
200 |
2.3.2 Slab Thickness of HS and Enclosed NS
a. Ceiling slab of top-most HS in non-landed development - 300mm. See FIGURE 2.3.2.
F
b. Slab between 2 HS - 175mm. See FIGURE 2.3.2.
F
Figures & Tables
<p class="clause" style="text-decoration:underline;"><strong>FIGURE 2.3.2 HS TOWER SHOWING HS AND NS (WITH ENCLOSED AND NON-ENCLOSED NS WALL) SLAB THICKNESS</strong></p>
<p><img sfref="[images|OpenAccessDataProvider]54595666-e746-4dd3-8336-0017793d7e47" src="https://www-scdf-gov-sg-admin.cwp.sg/images/default-source/trhs-2023/figure-2-3-2.png?sfvrsn=8e03eb45_2" alt="FIGURE 2.3.2" title="FIGURE 2.3.2" data-displaymode="Original"
/></p>
c. Floor slab of bottom-most HS without NS below – 200mm. See FIGURE 2.3.2.
F
Figures & Tables
<p class="clause" style="text-decoration:underline;"><strong>FIGURE 2.3.2 HS TOWER SHOWING HS AND NS (WITH ENCLOSED AND NON-ENCLOSED NS WALL) SLAB THICKNESS</strong></p>
<p><img sfref="[images|OpenAccessDataProvider]54595666-e746-4dd3-8336-0017793d7e47" src="https://www-scdf-gov-sg-admin.cwp.sg/images/default-source/trhs-2023/figure-2-3-2.png?sfvrsn=8e03eb45_2" alt="FIGURE 2.3.2" title="FIGURE 2.3.2" data-displaymode="Original"
/></p>
d. Floor slab of bottom-most NS in contact with soil – 200mm.
e. Slab between 2 enclosed NS – 175mm. See FIGURE 2.3.2.
F
f. Slab between HS and enclosed NS – 175mm. See FIGURE 2.3.2.
F
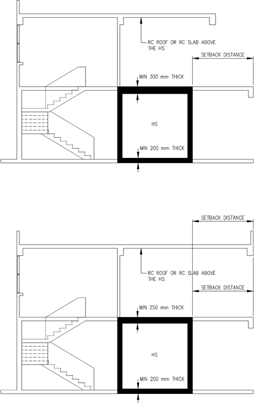
g. Ceiling slab of top-most HS in landed development – 300mm or 250mm (if there is a RC roof or another RC slab above the HS that is equal or extend beyond the required setback distance of that HS wall). See FIGURE 2.3.2(f).
F
2.3.3 Slab Thickness of HS and Non-Enclosed NS
a. Floor slab of HS that is directly supported by non-enclosed NS, NS walls or columns – 300mm. See FIGURE 2.3.2.
F
b. Ceiling slab of HS which is below non-enclosed NS, NS walls or columns – 300mm. See FIGURE 2.3.2.
F
c. Slab between 2 non-enclosed NS – 175 mm. See FIGURE 2.3.2.
F