sg-crest
Hotlines
  • 995

    Fire Engine / Ambulance

  • 1777

    Non-Emergency Ambulance

  • Fire Hazard Reporting

    1800 280 0000

  • General Enquiries

    1800 286 5555

  • 995

    Fire Engine / Ambulance

  • 1777

    Non-Emergency Ambulance

Legend: Explanations & Illustrations Rationale Note Figures & Tables Revision history

Clause 2.4 Location of HS

2.4.1 HS Position

a. A HS has to be positioned such that the setback distance of each HS wall shall be as large as practical and shall not be less than the minimum specified setback distance.

b. A HS with minimum 300mm thick ceiling slab in a landed house may have one of its walls (without HS door) abutting or near to an air well. The air well, has to be located such that it abuts a party wall and/or is surrounded by habitable space at ceiling slab level of the HS. The air well edge line shall not be regarded as EBL for the purpose of determining the minimum setback distance. The area of the air-well shall not be larger than 4.2m2 and the longer side of the air-well shall not be larger than 2.8m. See FIGURE 2.4.1(b).

F

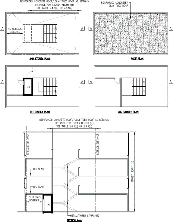
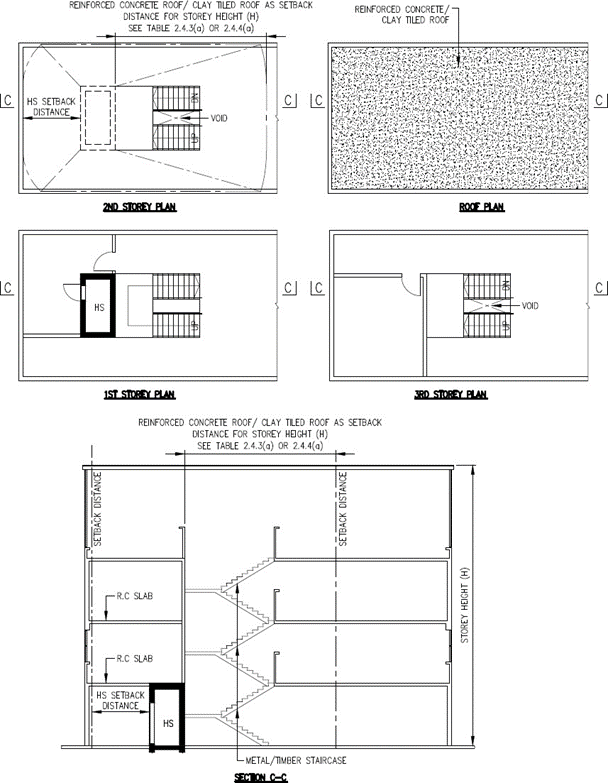
c. Where a staircase in a landed house is located within setback distance of the HS wall (without HS door), such staircase can be built of either reinforced concrete or metal/steel or timber materials provided that it is covered with either reinforced concrete roof or clay tile roof. See FIGURE 2.4.1c(i) & c(ii).

F

d. Where non-reinforced concrete roof or non-clay tile roof is provided for landed house, there shall be reinforced concrete elements to meet setback distance at least one storey above the HS as stipulated in clauses 2.4.3 and 2.4.4. See FIGURE 2.4.1(d).

F

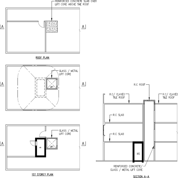
e. Where a non-reinforced concrete lift core in a landed house is located within setback distance of the HS wall (without HS door), such lift core shall be covered with either reinforced concrete roof or clay tile roof and meet the setback distance. See FIGURE 2.4.1e(i) & e(ii).

F

f. A HS can also be located in the basement of a landed house. Where the HS is located underground away from basement of landed house, an underground access route leading to HS must be provided with a reinforced concrete ceiling slab of minimum thickness of 125mm.

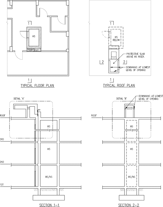
2.4.2 HS Tower

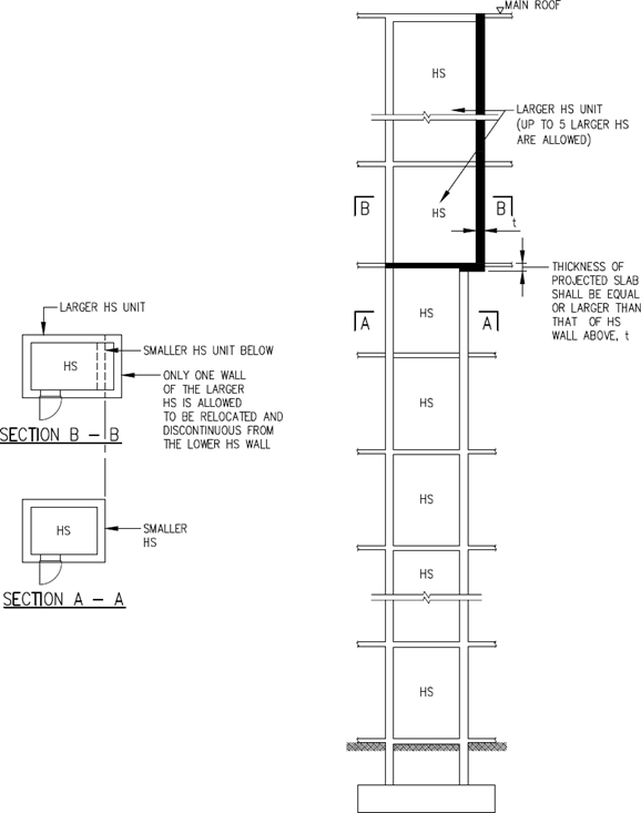
a. In a building of more than one-storey, the HS (or NS, if any) on every storey shall be located one on top of the other to form a vertical tower with its walls (where applicable) continuing to the foundation. See FIGURE 2.4.2(a).

F

b. Larger HS below the main roof level is allowed in the HS tower provided that:

i. The number of the larger HS shall not be more than one third of the total number of storeys of a building or capped at 5 larger HS, whichever is lesser; and

ii. Only one wall of the larger HS is allowed to be relocated and discontinuous from the wall of the lower HS below it. See FIGURE 2.4.2(b).

F

c. The space within a NS is not intended for protection of occupants during a National Emergency.

2.4.3 Setback Distances of HS Walls (Without Reinforced Concrete Down-hang Beams along EBL)

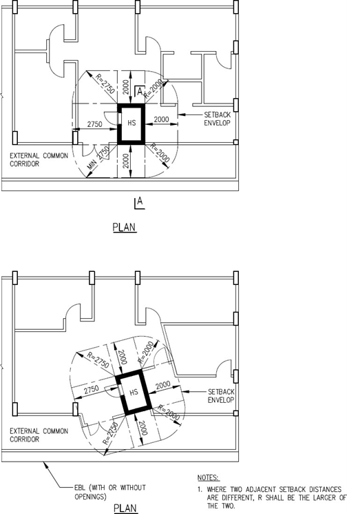
a. The HS walls shall be located at minimum setback distances from the EBL. See FIGURE 2.4.3a(i) & a(ii). The setback distances of the HS wall with HS door and the remaining 3 HS walls shall comply with TABLE 2.4.3(a).

F

b. Where the storey height of a HS on the first storey is up to 3.6 m and is greater than the storey heights of the HS directly above it, the minimum setback distances of the HS on the first storey shall be at least the same as the setback distances of the HS above it.

c. Trellis constructed of RC or steel hollow section may be used to make up for the shortfall in setback distance for HS walls (without HS door). However, a minimum 1000mm RC ceiling slab measured from the HS wall shall be provided. A perpendicular or parallel trellis arrangement, or a combination of both, with respect to the HS wall concerned, shall comply with the geometrical configuration as shown in FIGURE 2.4.3c(i) & c(ii).

F

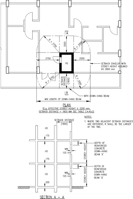
2.4.4 Setback Distances of HS Walls (With Reinforced Concrete Down-hang Beams along EBL)

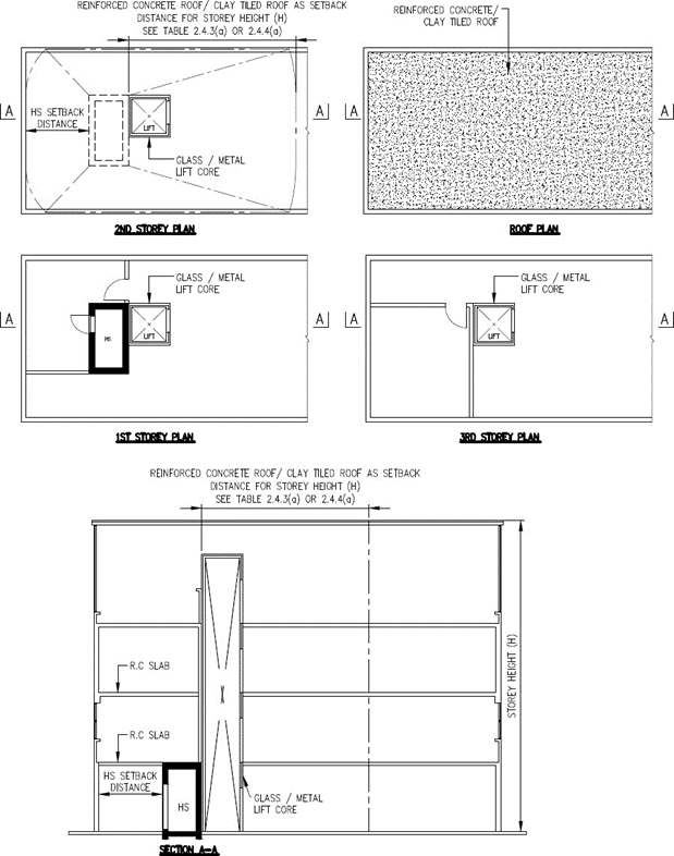
a. Where a down-hang beam is provided along the EBL in front of HS walls, the minimum setback distance of that HS wall can be reduced based on the effective storey height and in accordance with TABLE 2.4.4(a). The effective storey height is determined by the storey height less the depth ‘d’ of the down-hang beam. See FIGURE 2.4.4(a). If a down-hang beam is also provided along the EBL in front of the HS wall with HS door, the setback distance of this wall shall be in accordance with TABLE 2.4.4(a).

F

b. Trellis constructed of RC or steel hollow section may be used to make up for the shortfall in setback distance for HS walls (without HS door). However, a minimum 1000mm RC ceiling slab measured from the HS wall shall be provided as shown in FIGURE 2.4.4(b). A perpendicular or parallel trellis arrangement, or a combination of both, with respect to the HS wall concerned, shall comply with the geometrical configuration as shown in FIGURE 2.4.3(c).

F

c. Where the storey height of a HS on the first storey is up to 3.6m and is greater than the storey heights of the HS directly above it, the minimum setback distances of the HS on the first storey shall be at least the same as the setback distances of the HS above it. Where a down-hang beam is provided at 2nd storey ceiling slab, the same down-hang beam shall be provided at 1st storey ceiling slab.

d. Clause 2.4.4 shall apply only if the width of the reinforced concrete down-hang beam is at least 125mm.

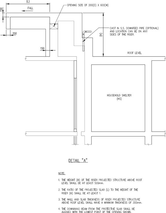
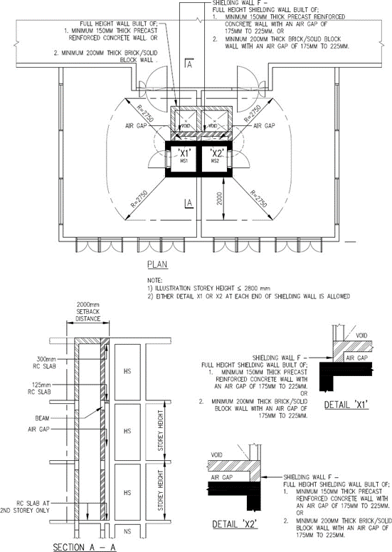
2.4.5 Full Height Shielding Walls to HS Wall (without HS Door)

a. Where HS is located close to exterior face of buildings or along external building line and there is a shortfall in the setback distance, it can be shielded by full height shielding walls with air gap in place of the required ceiling slab within the setback distance envelop. The full height shielding walls for such HS at different locations are shown in Figure 2.4.5(a) to (h) and as specified:

F

i. Shielding wall “A” and “B” for HS with shortfall of setback distance on one side of HS (Type 1A, 1B & 1C). See Figure 2.4.5(a) to (c).

F

ii. Shielding wall “A” and “B” for HS with shortfall of setback distance on two sides of HS (Type 2A & 2B). See Figure 2.4.5(d) & (e).

F

iii. Shielding wall “C” and “D” for HS with shortfall of setback distance at one corner of HS. (Type 3A). See Figure 2.4.5(f).

F

iv. Shielding wall “C” and “E” for HS with shortfall of setback distance at one corner of HS. (Type 3B). See Figure 2.4.5(g).

F

v. Shielding wall “A” and “B” that spans across two HS with shortfall of setback distance on one side of HS (Type 4). For such design, the HS wall with blast door shall be located opposite the shielding wall. See Figure 2.4.5 (h).

F

b. The materials and dimensions of the shielding walls “A” to “E” shall comply with the following:

i. Shielding wall “A” covering the entire length of the HS wall, shall have an extension of minimum 300mm as shown in the Figure 2.4.5(a) to (e) and (h). The thickness and air gap for this shielding wall shall be:

• minimum 150mm thick precast reinforced concrete wall with an air gap of 175mm to 225mm, or

• minimum 200mm thick brick or solid block wall with an air gap of 175mm to 225mm.

The shielding wall shall be cover at roof level with RC slab of at least 300mm thick. A RC slab of at least 125mm thick shall be provided within the air gap at the top-most storey level immediately below the roof slab.

F

ii. Shielding wall “B”, “C”, and “D” shall be minimum 100mm thick precast reinforced concrete wall or 200mm thick brick or solid block wall. This shielding wall shall be continuous and covers the entire setback distance along shielding wall.

iii. Shielding Wall “E” can be built of either RC or steel trellis. For RC trellis, the minimum member size is 125mm by 125mm. For steel trellis, the minimum steel hollow section size shall be 125mm by 125mm by 6mm thick (steel thickness). This shielding wall shall be continuous and cover the entire setback distance along the HS wall.

2.4.6 Setback Distances of Basement HS

a. For the HS in the basement, the minimum setback distances of the HS wall with HS door and the remaining 3 HS walls shall comply with the TABLE 2.4.6(a). See FIGURE 2.4.6(a).

F

b. There is no setback distance requirement for basement HS wall with door if it faces a reinforced concrete basement wall not in direct contact with earth and the distance between them is at least 1500mm (with no openings within the influence zone). See FIGURE 2.4.6(b).

F

c. There is no setback distance requirement for basement HS wall (without HS door) of landed house. See FIGURE 2.4.6(c) if the HS wall is:

F

i. 200mm thick and earth backing of up to HS roof level is of minimum distance 1000mm measured from the external face of the HS wall; or

ii. 250mm thick and earth backing of up to HS roof level is of minimum distance 300mm measured from HS wall. The scupper drain (if any) is allowed to be located minimum 300mm away from the HS wall; or

iii. 200mm thick and facing a reinforced concrete basement wall which is in direct contact with earth backing up to a minimum distance of 300mm throughout its full height.

iv. 200mm thick and facing a reinforced concrete basement storey wall not in direct contact with earth and the distance between them is at least 800mm (with no openings within the influence zone).

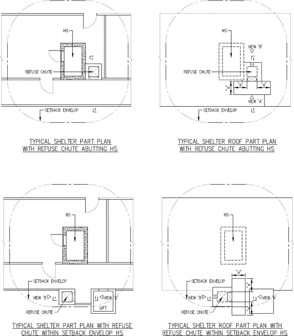
2.4.7 RC Lift Core or/and Refuse Chute or/and Service Riser located within Setback Distance of HS

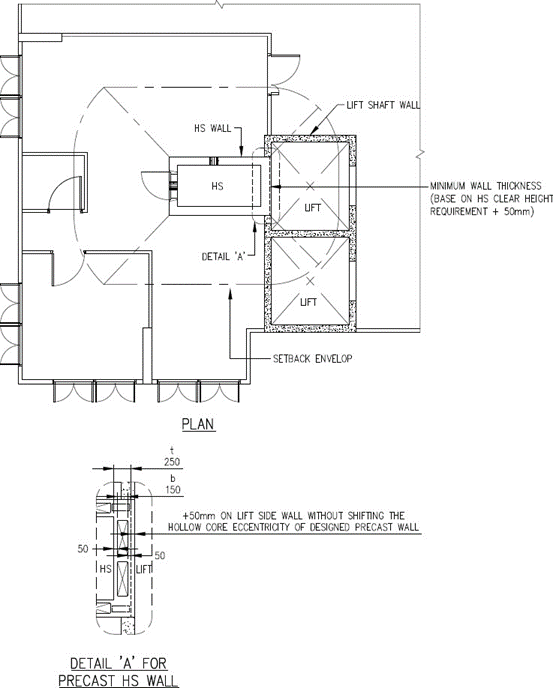
a. RC lift core can be located within the setback distances of HS walls. Where the RC lift core shares a common wall with the HS, an additional 50mm thickness (on top of the required HS wall thickness under table 2.3.1(a)) shall be provided to the common wall between lift wall and HS wall as shown in FIGURE 2.4.7(a).

F

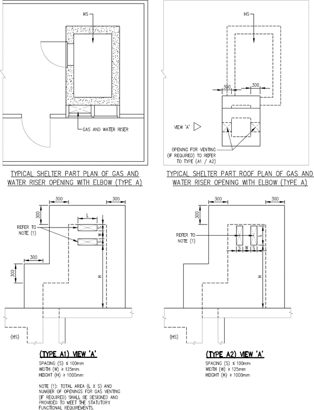
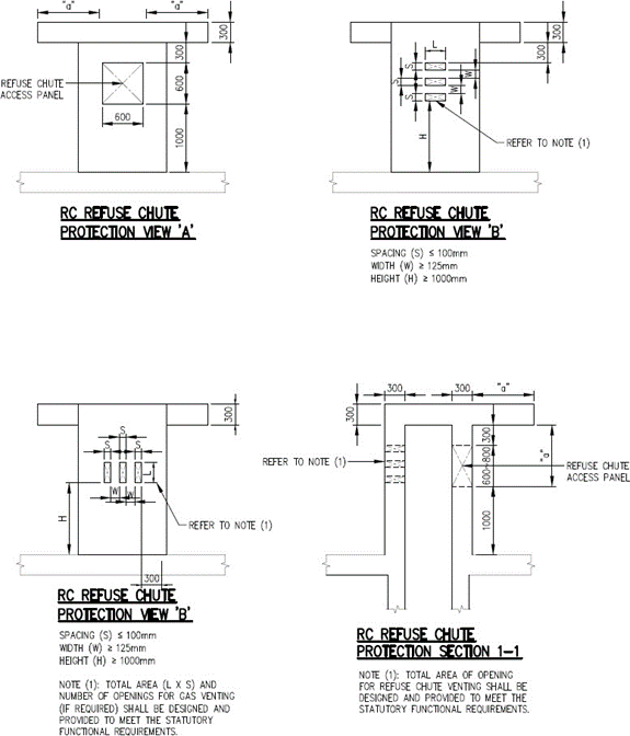
b. Where the refuse chute is abutting the HS or located within the setback distances and it protrudes above the main roof, they shall comply with the requirements shown in FIGURE 2.4.7b(i) and b(ii).

F

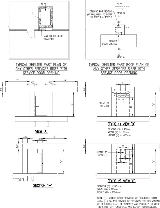
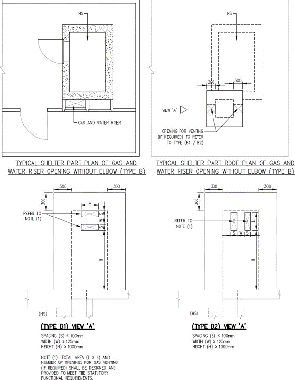
c. Where the service riser is abutting the HS or located within the setback distances and it protrudes above the main roof, it shall comply with the requirements shown in FIGURE 2.4.7c(i) to c(vi).

F

d. Where the service riser is located within the setback distance of the HS walls (without door), the design shall comply with the requirements as shown in FIGURE 2.4.7d(i) & d(ii).

F

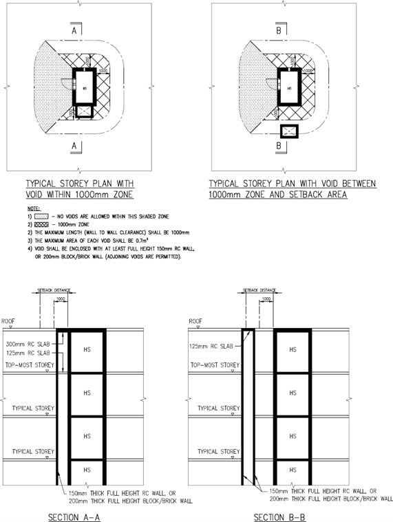
2.4.8 Void within Setback Distance of HS Walls (Without HS Door)

Void located within the setback distance of HS walls (without HS door) shall comply with the following requirements. See FIGURE 2.4.8(a).

F

a. Void located within 1000mm from HS walls:

i. The void shall be enclosed by minimum thickness of full height 150mm thick RC walls or full height 200mm thick block/brick walls.

ii. The maximum length and area of each void shall be 1000mm and 0.7m2 respectively. Such length and area of void shall be measured between the internal face of the walls.

iii. There shall be at least a full height 150mm thick RC wall or full height thick 200mm block/ brick wall between adjoining voids.

iv. RC slab of at least 300mm thick shall be provided at the roof.

v. RC slab of at least 125mm thick shall be provided to cover the void at the top-most storey level immediately below the roof slab.

b. Void located beyond 1000mm from HS walls:

i. The void shall be enclosed by minimum thickness of full height 150mm thick RC walls or full height 200mm thick block/ brick walls.

ii. The maximum length and area of each void shall be 1000mm and 0.7m2 respectively. Such length and area of void shall be measured between the internal face of the walls.

iii. There shall be at least a full height 150mm thick RC wall or full height thick 200mm block/ brick wall between adjoining voids.

iv. RC slab of at least 125mm thick shall be provided at the roof.

c. For void located behind a shielding wall, it shall be enclosed by minimum thickness of full height 150mm thick RC walls or full height 200mm thick block/ brick walls. See FIGURE 2.4.8 (c).

F

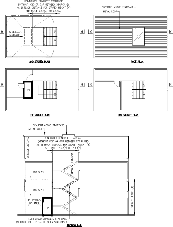
2.4.9 Staircase in non-landed development and located within Setback Distances of HS Walls (Without HS Door)

Staircase can be located within the setback distance of HS walls (without HS door) and shall comply with all the following requirements. See FIGURE 2.4.9.

F

i. Setback of the affected HS wall(s) shall comply with the relevant setback distances.

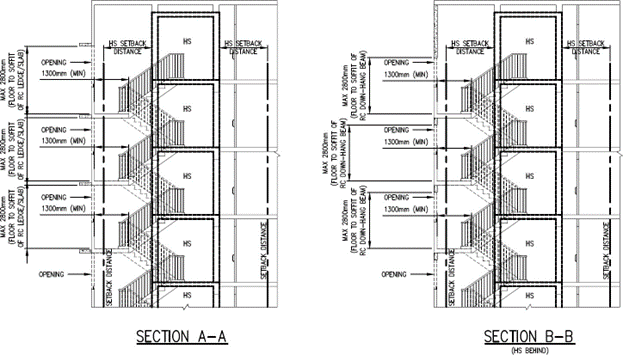
ii. Clear height from FFL to soffit of ceiling or down-hang beam shall be maximum of 2800mm.

iii. Distance from the EBL to edge of staircase landing shall be minimally 1300mm.