sg-crest
Hotlines
  • 995

    Fire Engine / Ambulance

  • 1777

    Non-Emergency Ambulance

  • Fire Hazard Reporting

    1800 280 0000

  • General Enquiries

    1800 286 5555

  • 995

    Fire Engine / Ambulance

  • 1777

    Non-Emergency Ambulance

Legend: Explanations & Illustrations Rationale Note Figures & Tables Revision history

Clause 2.5 HS Door

2.5.1 Dimensions

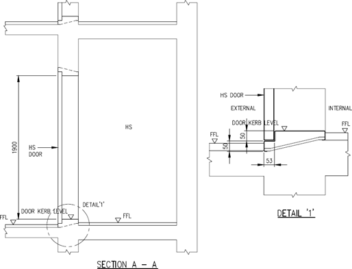
a. The opening dimensions of HS door shall be 700mm (W) x 1900mm (H). See FIGURE 2.5.1(a).

F

b. HS door frame that is cast together with the HS wall shall have single or double door rebate. See FIGURE 2.5.1(a) and (b).

F

2.5.2 Door Frame

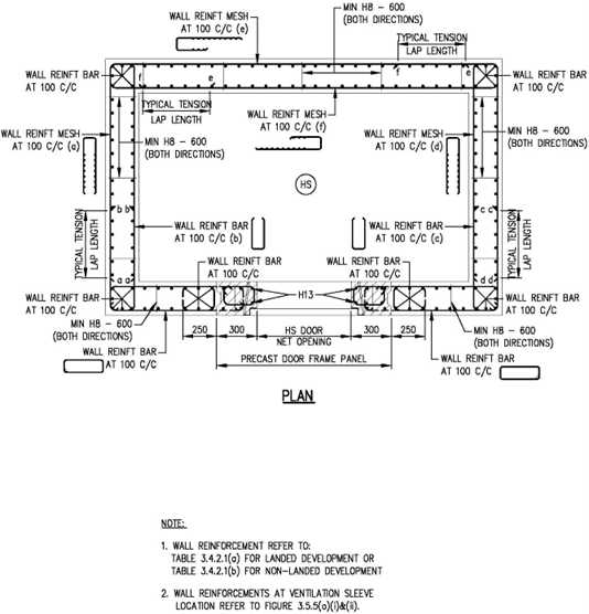
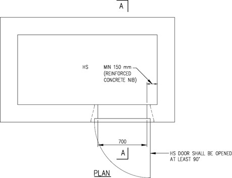
a. There shall be a minimum 150mm reinforced concrete nib next to vertical edge of the HS door frame. See FIGURE 2.5.2(a).

F

b. For pre-cast door frame panel of Type 1, the reinforced concrete next to two vertical edges of the HS door frame shall be 300mm each. See FIGURE3.5.5(a).

F

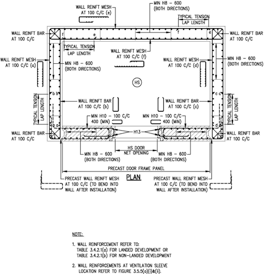
c. For pre-cast door frame panel of Type 2, the reinforced concrete next to vertical edges of the HS door frame shall be 300mm on one side, and 150mm plus the HS wall thickness on the other side. See FIGURE 3.5.5(f).

F

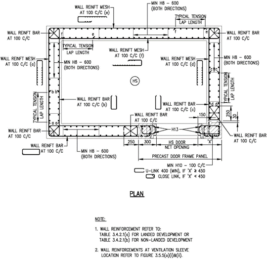
d. For pre-cast door frame panel of Type 3, the reinforced concrete panel with full length or width of HS wall must be properly connected to the in-situ HS walls and slabs. See FIGURE 3.5.5(k).

F

e. The door frame must be positioned such that its door is above FFL and can be opened at least 90°. See FIGURE 2.5.2(e).

F

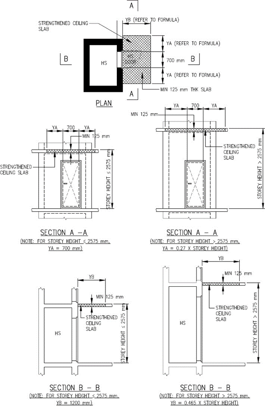
2.5.3 Strengthened Ceiling Slab Outside HS Door and HS Walls

The minimum thickness of the reinforced concrete ceiling slab immediately outside the HS wall with HS door shall be 125mm and structurally connected to HS tower. See FIGURE 2.5.3. This requirement shall only apply to HS in non-landed houses.

F