sg-crest
Hotlines
  • 995

    Fire Engine / Ambulance

  • 1777

    Non-Emergency Ambulance

  • Fire Hazard Reporting

    1800 280 0000

  • General Enquiries

    1800 286 5555

  • 995

    Fire Engine / Ambulance

  • 1777

    Non-Emergency Ambulance

Legend: Explanations & Illustrations Rationale Note Figures & Tables Revision history

Clause 2.6 Precast Hollow Core Household Shelters (Precast HS)

2.6.1 Design of Precast Hollow Core Household Shelters (Precast HS)

Precast hollow core household shelter shall be designed as a complete HS. For two adjoining HS, they can be formed by a complete HS and a C-shaped HS.

The various designs of precast hollow core HS are as follows:

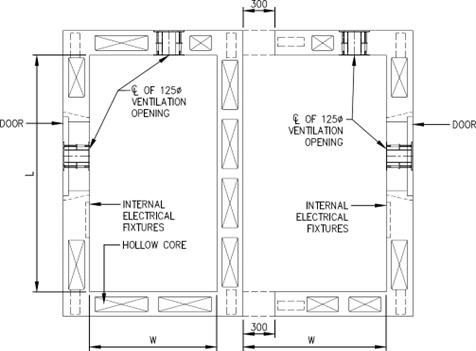
a. Precast HS with HS door on longer wall and one of the ventilation sleeves above the door. See FIGURE 2.6.1(a).

F

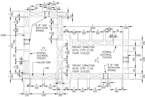
b. Precast HS and C-shaped Precast HS connected at the shorter wall and with HS door on longer walls. See FIGURE 2.6.1(b).

F

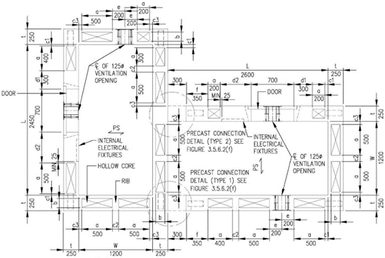
c. Precast HS and C-shaped Precast HS connected at the longer wall and with HS door on longer walls. See FIGURE 2.6.1(c).

F

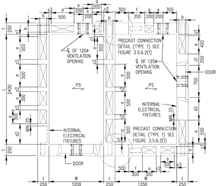
d. Precast HS and C-shaped Precast HS with connection between longer and shorter walls respectively and with HS doors on long wall. See FIGURE 2.6.1(d).

F

e. Precast HS adjoining cast in-situ walls/ columns. See FIGURE 2.6.1(e).

F

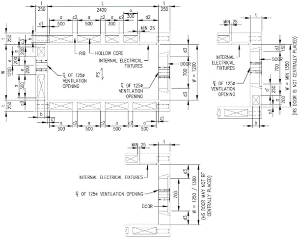
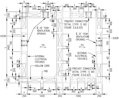
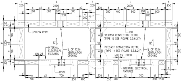
2.6.2 Dimensions

a. The internal length (L) and width (w) of the HS Walls shall be modular in size with an increment of 50mm.

b. Precast HS showing the arrangement of hollow cores in HS wall with its dimension as shown in FIGURE 3.5.6.1(a) to (h) and spacing, wall thickness, blast door, ventilation sleeves and electrical services shall be designed with dimensions as shown in Tables 3.5.6(a), 3.5.6(b) and 3.5.6(c).

F

c. Hollow cores shall be modular in size with an increment of 100mm for its length and 25mm for its width. See FIGURE 2.6.2(c).

F

d. The spacing between two adjacent hollow cores in HS wall shall be 100mm.

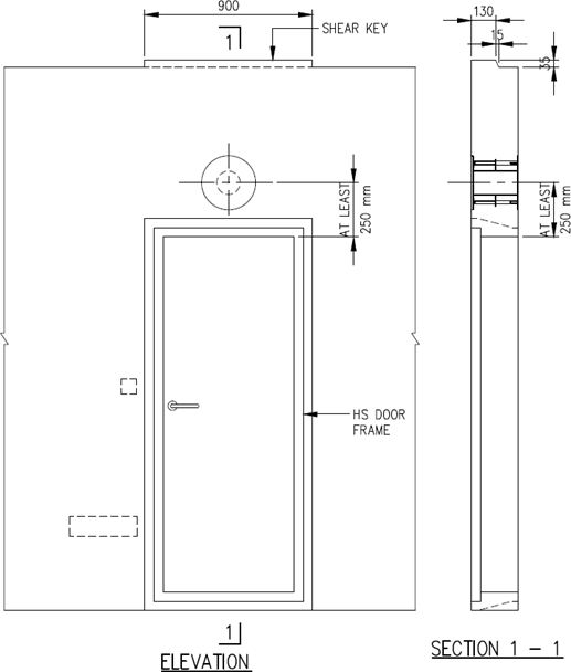
e. There shall be a minimum 150mm reinforced concrete nib next to vertical edge of the HS door frame.

f. Shear key of 35mm high shall be provided on wall above the HS door. See FIGURE 2.6.2(f).

F