sg-crest
Hotlines
  • 995

    Fire Engine / Ambulance

  • 1777

    Non-Emergency Ambulance

  • Fire Hazard Reporting

    1800 280 0000

  • General Enquiries

    1800 286 5555

  • 995

    Fire Engine / Ambulance

  • 1777

    Non-Emergency Ambulance

Legend: Explanations & Illustrations Rationale Note Figures & Tables Revision history

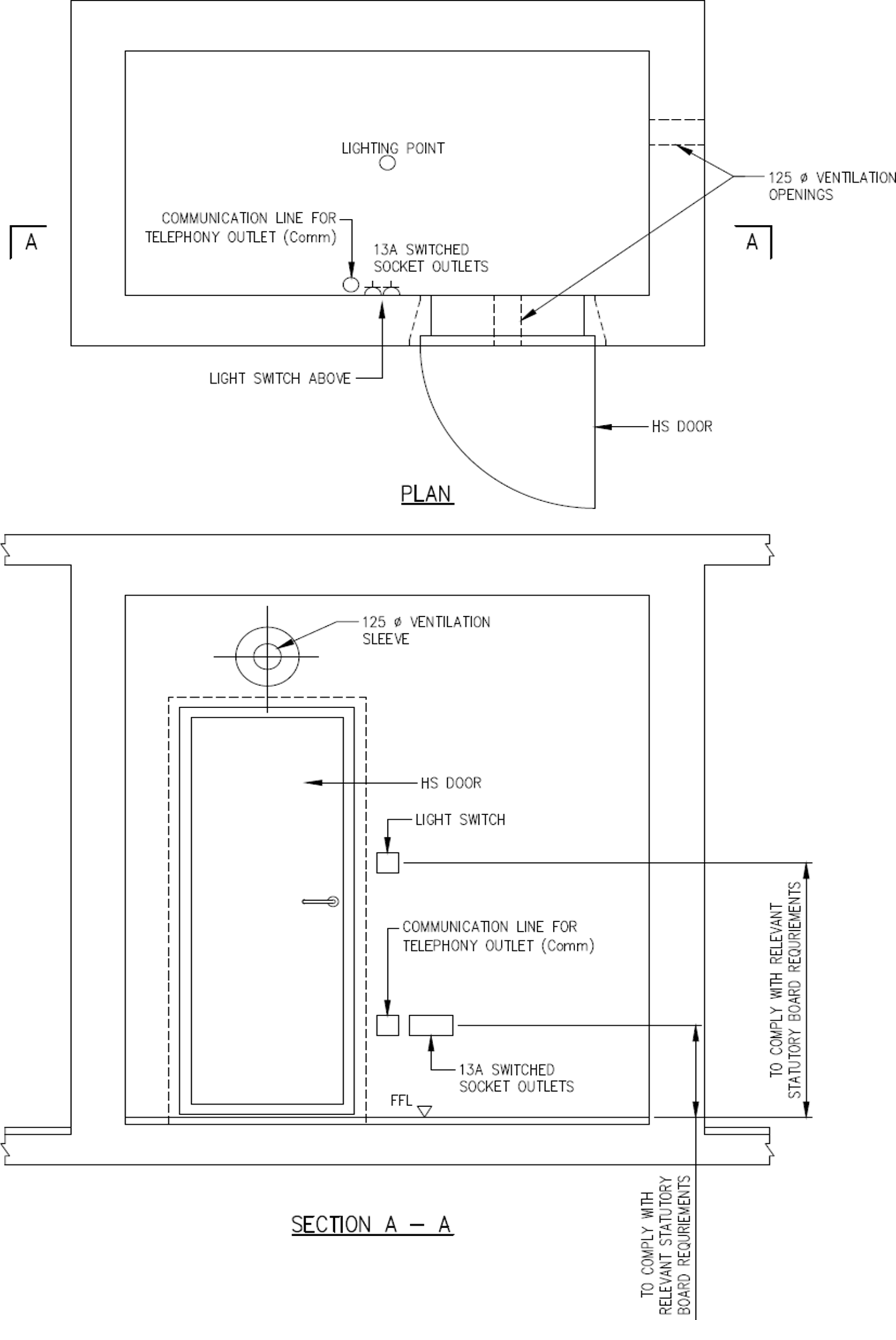
Clause 2.7 Fixtures in HS

2.7.1 General

a. The following electrical and communication fixtures in steel or PVC conduit system shall be provided inside the HS to provide basic stay-in and communication facilities:

i.13A switched socket outlets.

ii. Switch and lighting points.

iii. Communication line for telephony outlet.

b. The electrical and communication fixtures shall be designed and installed in accordance with the relevant local Codes of Practice for Info-communication Facilities in Building (COPIF) and other statutory requirements for peacetime usage.

c. The mounting height of the lighting switch and other electrical and communication fixtures shall comply with the requirement as stipulated in the other statutory codes and requirements for peacetime usage. See FIGURE 2.7.1(c).

F

d. Other fixtures, such as cabinets and shelves, which are required for peacetime use, are allowed provided they are easily dismantled and removed.

2.7.2 Power Points

One 13A switched socket outlet shall be provided in the vicinity of adjacent to the telephony outlet. An additional 13A switched socket outlet shall be provided for other electrical appliances such as fan.

2.7.3 Light Fittings

Light fittings shall be mounted on the soffit of HS ceiling slab using screws with non-metallic inserts. Wall-mounted light fittings are not permitted.

2.7.4 Cable Entries and Openings

All cable entry openings to the HS shall be fully and properly sealed to ensure air-tightness as required under Clause 3.6.