sg-crest
Hotlines
  • 995

    Fire Engine / Ambulance

  • 1777

    Non-Emergency Ambulance

  • Fire Hazard Reporting

    1800 280 0000

  • General Enquiries

    1800 286 5555

  • 995

    Fire Engine / Ambulance

  • 1777

    Non-Emergency Ambulance

Legend: Explanations & Illustrations Rationale Note Figures & Tables Revision history

Clause 2.9 Transfer Structure Supporting HS Tower

2.9.1 General

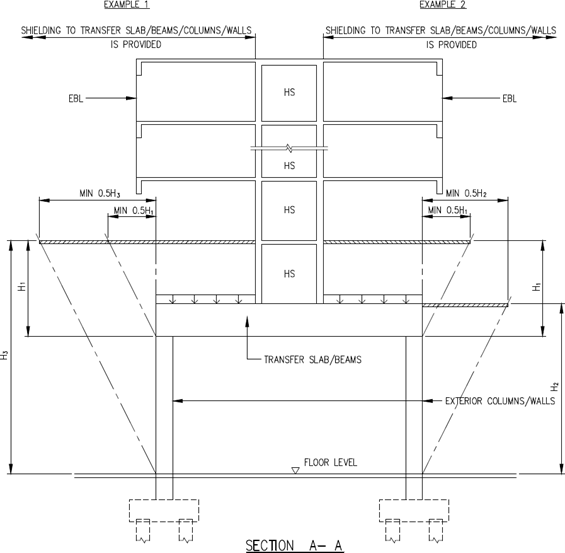
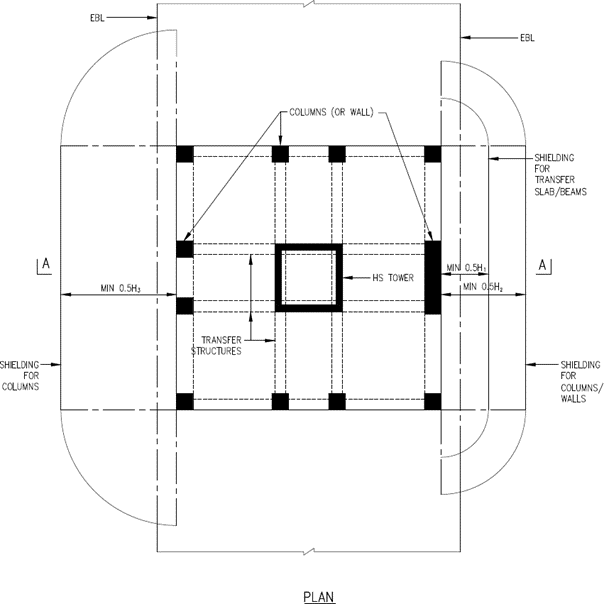
If the loads from walls of HS towers cannot be carried directly to the foundation, transfer structure can be used to carry the loads indirectly to the foundation. The transfer structure could take the form of slab, beams, or combination of both. When transfer structure is provided to carry HS tower, additional technical requirements described herein shall be complied with. Please note the following conditions in the HS tower design supported by transfer structure:

a. RC slab shall be used as the shielding element of the transfer structure and its supporting columns and walls. See FIGURE 2.9.1(a) and (b).

F

b. The use of trellis or/and the adjacent building structure as shielding element of the transfer structure and its supporting columns and walls of HS is not allowed.

c. Only one transfer of HS loads in each tower by the transfer structure to its supporting columns and/ or walls is allowed. Multiple transfers of HS loads from the same HS tower are not allowed.

d. For unshielded exterior columns, the minimum size (either its diameter or the shorter dimension) shall be 500mm.

e. The use of pre-stressed concrete for the transfer structure and its supporting columns and walls is not permitted.

2.9.2 Transfer Structure

Additional design checks on transfer structure supporting HS tower is required. See Clause 3.3.