sg-crest
Hotlines
  • 995

    Fire Engine / Ambulance

  • 1777

    Non-Emergency Ambulance

  • Fire Hazard Reporting

    1800 280 0000

  • General Enquiries

    1800 286 5555

  • 995

    Fire Engine / Ambulance

  • 1777

    Non-Emergency Ambulance

Legend: Explanations & Illustrations Rationale Note Figures & Tables Revision history

Clause 3.3 Analysis

3.3.1 General

The vertically continuity of HS and NS walls, where applicable, to the foundation shall comply with clause 2.4.2.

3.3.2 Beam Supported by HS Wall

The beam that is supported by HS wall shall be designed and detailed as simply supported on the HS wall or cantilever from the HS wall.

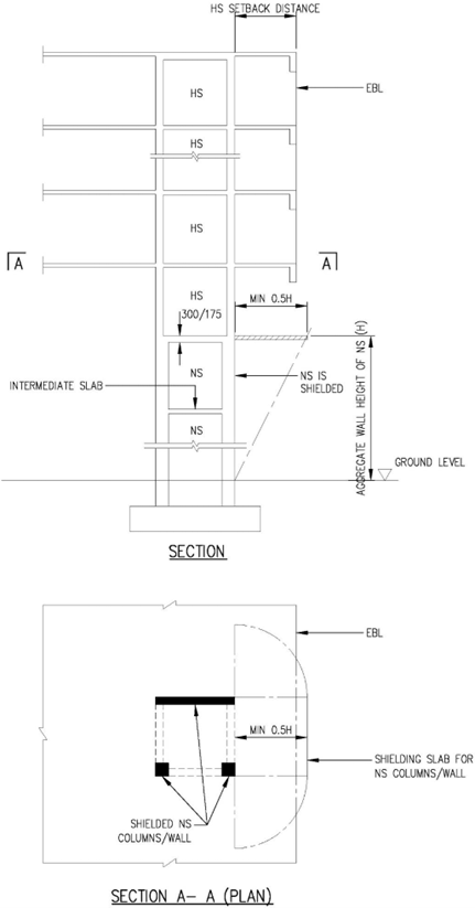
3.3.3 Shielded NS walls and/or NS columns

No additional design checks on HS tower is required if its supporting NS elements, wall(s), column(s) or any of its combination, are shielded. These structural elements are deemed adequately shielded if reinforced concrete slab or other equivalent structural forms provided above them is extended beyond their edges by a minimum length of 0.5H, where H is the aggregate wall height of NS. See FIGURE 3.3.3.

F

3.3.4 Unshielded NS Wall(s) and/or NS Columns

The following requirements are to be complied with if the design adopts:

a. Unshielded NS Wall(s)

The minimum thickness of each NS wall shall be 300mm. The HS tower shall be designed against the most severe effects as the result of the removal of a portion of the NS wall equivalent to an opening of 1500mm diameter on the NS wall at its most critical location. See FIGURE 3.3.4(a).

F

b. Unshielded NS Column(s)

The minimum size (either its diameter or the shorter dimension) of NS column shall be 500mm. The HS tower shall be designed against the most severe effects as the result of the removal of any one NS column. See FIGURE 3.3.4(b).

F

c. Combination of Unshielded NS Wall(s) and NS Column(s)

The minimum thickness of each NS wall and minimum size (either its diameter or the shorter dimension) of NS column shall be 300mm and 500mm respectively. The HS tower shall be designed against the most severe effects as the result of the following (See FIGURE 3.3.4(c)):

F

i. Removal of a portion of the NS wall equivalent to an opening of 1500mm diameter on the NS wall at its most critical location and

ii. Removal of any one NS column at a time.

The above removal of wall or column shall be considered one at a time.

d. The following criteria are to be used when performing design checks for Clause 3.3.4(a), 3.3.4(b) or 3.3.4(c):

i. The design loads shall be based on the load combination and values of partial safety factors for actions (𝑦f) in accordance with Table 3.3.4(d).

F

ii. The design strength for a given material is derived from the characteristic strength divided by the partial safety factor for strength of material (𝑦m), which shall be 1.2 for concrete and 1.0 for reinforcement.

3.3.5 Transfer Structure Supporting HS Tower

3.3.5.1 Design against Collapse Load

The design loads for the transfer structure shall include a collapse load of 20kN/m2 acting on transfer slab/beam. An additional load combination in the design of transfer structure supporting the HS tower, incorporating the collapse load, shall be considered with partial safety factors for actions (𝑦f) given in Table 3.3.5.1. Only one transfer of HS loads from each tower by the transfer structure to its supporting columns and/ or walls is allowed. Multiple transfers of HS load from the same HS tower is not allowed. See FIGURE 2.9.1(a) and FIGURE 2.9.1(b).

F

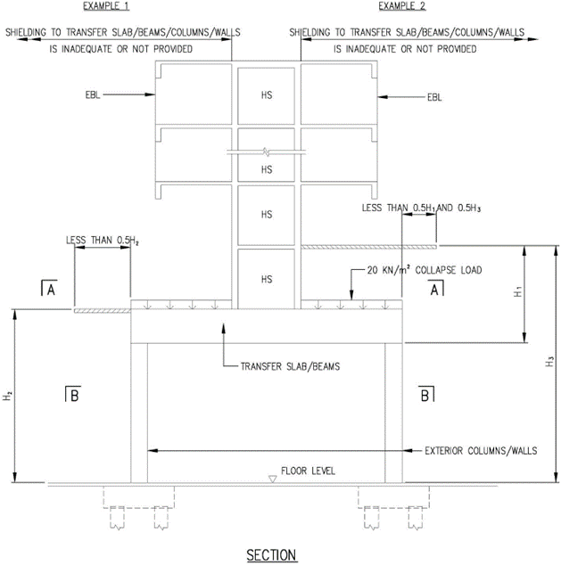
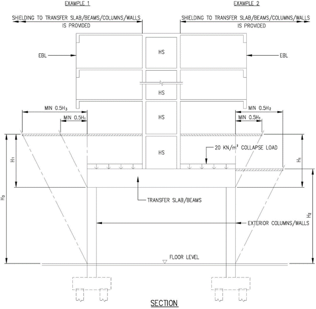
3.3.5.2 Shielded Transfer Structure

No additional design checks on transfer structure are required, besides the requirement in Clause 3.3.5.1, if the transfer structures are shielded by RC slab or other equivalent structural forms. The transfer structure is deemed adequately shielded if Clause 3.3.5.2(a) and 3.3.5.2(b) are complied with:

a. Shielding of Transfer slab/beams

The transfer slab/beams are deemed to be shielded if RC shielding slab or other equivalent structural forms is provided directly above the transfer slab/beams and is extended beyond their external edges by a minimum length of 0.5H1, where H1 is the vertical distance between the top level of the RC shielding slab and the soffit of transfer slab/beams. See FIGURE 3.3.5.2(a).

F

b. Shielding of Exterior Columns

The transfer columns are deemed to be shielded if RC shielding slab or other equivalent structural forms is provided above the exterior columns and is extended beyond their exterior edges by a minimum length of 0.5H2 or 0.5H3, where H2 and H3 are the vertical distances between the top level of the RC shielding slab and the base of the exterior columns. See FIGURE 3.3.5.2(a).

F

3.3.5.3 Unshielded Transfer Structure

Besides the requirement in Clause 3.3.5.1, additional design checks on unshielded transfer structure (See FIGURE 3.3.5.3) shall be carried out in accordance with the following requirements:

F

a. Unshielded Transfer Slab/Beams

The transfer structure shall be designed against the most severe effects as the result of the removal of a portion of the transfer slab/beam equivalent to an opening of 1500mm diameter on the transfer slab/beams at its most critical location. See FIGURE 3.3.5.3a (i) and FIGURE 3.3.5.3a (ii).

F

b. Unshielded Exterior Columns and Walls

The minimum size (either its diameter or shorter dimension) of the exterior columns shall be 500mm and the minimum thickness of the wall shall be 300mm. The transfer structure shall be designed against the most severe effects as the result of the removal of any one exterior column at a time or the removal of a portion of the exterior wall equivalent to an opening of 1500mm diameter on the transfer wall at its most critical location. Alternative path for load transfer shall be designed for such cases. See FIGURE 3.3.5.3b (i) and FIGURE 3.3.5.3b (ii).

F

c. The following are the criteria to be used when performing design checks for Clause 3.3.5.3(a) and 3.3.5.3(b):

i. The design loads including collapse load, shall be based on the load combination and values of partial safety factors for loads (𝑦f) in accordance with Table 3.3.5.1.

F

ii. The design strength for a given material is derived from the characteristic strength divided by the partial safety factor for strength of material (𝑦m), which shall be 1.2 for concrete and 1.0 for reinforcement.