sg-crest
Hotlines
  • 995

    Fire Engine / Ambulance

  • 1777

    Non-Emergency Ambulance

  • Fire Hazard Reporting

    1800 280 0000

  • General Enquiries

    1800 286 5555

  • 995

    Fire Engine / Ambulance

  • 1777

    Non-Emergency Ambulance

Legend: Explanations & Illustrations Rationale Note Figures & Tables Revision history

Clause 3.4 Member Dimensions and Reinforcement Requirements

3.4.1 Member Dimensions

The minimum member size of HS and NS shall be as stipulated in Chapter 2 – Architectural Design.

3.4.2 Reinforcement Requirements

All diameters of reinforcement specified hereinafter shall refer to minimum bar diameters. All spacing of reinforcement specified hereinafter shall refer to maximum spacing of reinforcement in both directions.

3.4.2.1 Wall Reinforcements of HS and NS

a. Minimum Reinforcement in HS walls in landed development – refer to TABLE 3.4.2.1(a).

F

b. Minimum Reinforcement in HS or NS walls in non-landed development – refer to TABLE 3.4.2.1(b).

F

c. Reinforcements at both faces of the internal common wall shall be H 10-100 c/c in both directions. The shear links shall be H8-600 c/c in both directions.

d. Reinforcements at each sides of the blast door frame and its stiffeners shall be 2H13.

3.4.2.2 Slab Reinforcements of HS and NS

Top and bottom reinforcements of the slab shall be H 10-100 c/c in both directions. The shear links shall be H8-600 c/c in both directions.

3.4.2.3 Ceiling Slab Immediately Outside the HS

a. The ceiling slab immediately outside the HS wall with HS door shall be constructed of reinforced concrete. Two layers of reinforcement bars (top and bottom) of H 10-100 c/c in both directions shall be provided for the ceiling slab with minimum 125mm thick.

b. The reinforcements of every floor slab immediately outside HS tower walls shall be structurally connected to HS tower.

3.4.2.4 HS Slab Which Is Integrated With Pile-Cap/Footing

For HS slab integrated with the pile-cap or footing of more than 500mm thick, shear links is not required. The maximum spacing of main reinforcement shall be 200mm c/c.

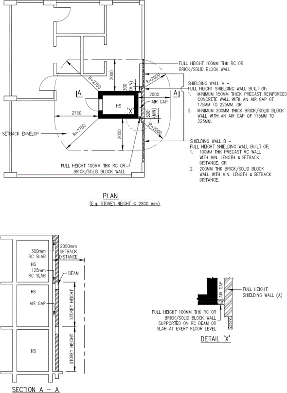
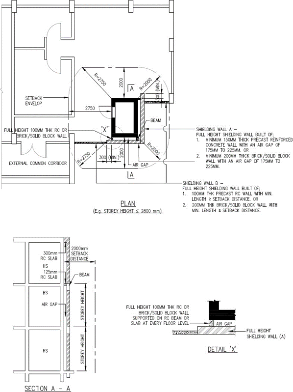
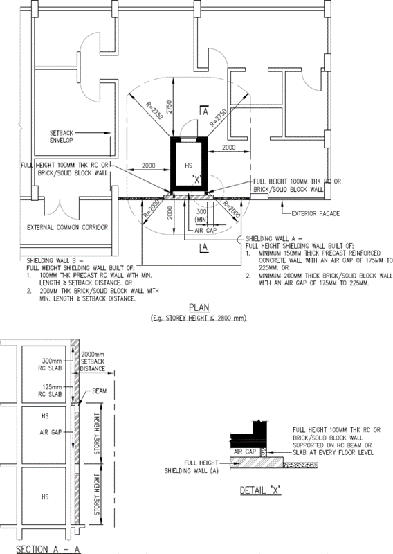
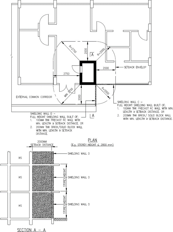
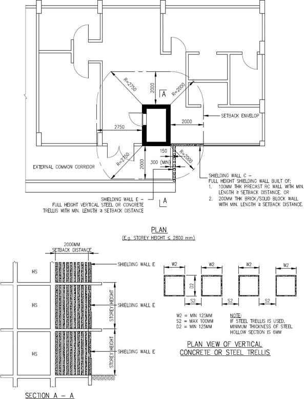
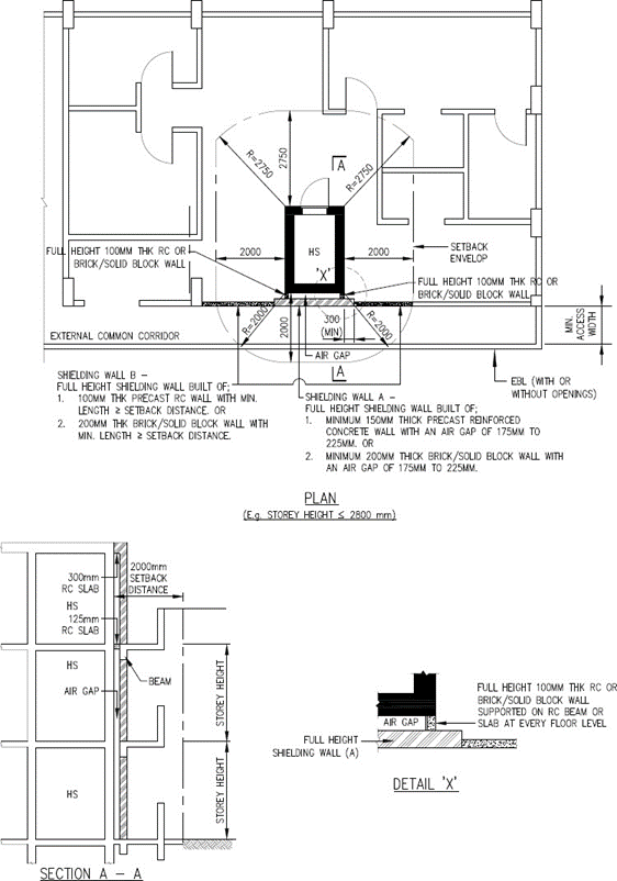
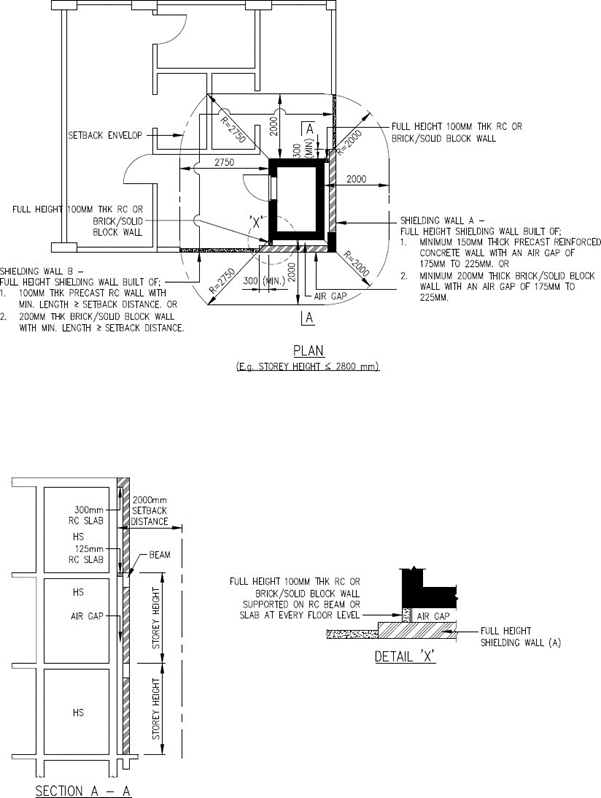
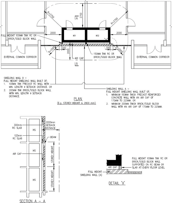
3.4.2.5 Reinforcement Bar Details of Precast Shielding Wall for HS Wall

The shielding wall for the HS wall could be built of brick/ block wall and precast reinforced concrete wall. See FIGURE 2.4.5(a) to (h).

F

a. The brick/ block wall shall be tied to the reinforced concrete walls or columns by a wall tie system to ensure lateral stability.

b. The precast reinforced concrete wall shall comply with the following requirements:

i. The steel welded mesh of minimum H10 spaced at 200mm vertically and horizontally shall be used for both faces of shielding precast reinforced concrete wall.

ii. Reinforcements at both faces of the shielding wall shall be minimum H10-200 c/c. Minimum links shall be provided in both directions.