sg-crest
Hotlines
  • 995

    Fire Engine / Ambulance

  • 1777

    Non-Emergency Ambulance

  • Fire Hazard Reporting

    1800 280 0000

  • General Enquiries

    1800 286 5555

  • 995

    Fire Engine / Ambulance

  • 1777

    Non-Emergency Ambulance

Legend: Explanations & Illustrations Rationale Note Figures & Tables Revision history

Clause 3.5 Detailing of HS Tower

3.5.1 General

The HS tower is to be detailed to allow for the installation of services and fixtures in HS and to resist spalling of the internal face of HS walls, soffit of ceiling slabs and/or finishes on HS floor slab.

3.5.2 Lap and Anchorage Length

Requirements for lap and anchorage length of reinforcement bars are as follows:

a. Full lap and anchorage length of reinforcements in HS and NS walls and slabs shall be provided. The lap length shall take into account good or poor bond condition, steel bar diameter, shape of steel bar, concrete cover, steel strength and location where reinforcement bar laps and confinement of transverse bars.

b. Minimum tension lap and anchorage length of reinforcement bars for concrete grades C25/30 and C32/40 with good bond condition shall be as shown in TABLE 3.5.2(a) and TABLE 3.5.2(b) respectively. Longer tension lap and anchorage length shall be provided if they are required to meet poor bond condition and/or the structural load and safety requirements.

F

c. Welding of reinforcement bars to attain tension anchorage length or tension lapped length is not permitted.

d. Bundled bars are not permitted.

3.5.3 Concrete Cover

The minimum and maximum concrete covers to the main reinforcement shall be 25mm and 40mm respectively.

3.5.4 Cast-In-Situ Elements

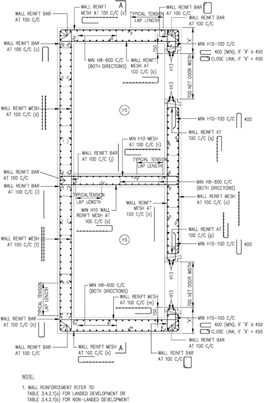
Cast-In-Situ HS elements shall comply with the dimensions and detailed requirements as shown in the following figures:

3.5.4 Cast-In-Situ Elements
FIGURE 3.5.4 (a) Plan of HS
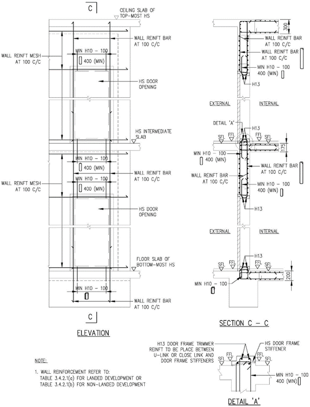
FIGURE 3.5.4 (b) Sectional details of HS slabs/walls
FIGURE 3.5.4 (c) Sectional details of HS slabs/walls
FIGURE 3.5.4 (d) Plan of two HS with an internal common wall
FIGURE 3.5.4 (e) Sectional details of two HS with an internal common wall
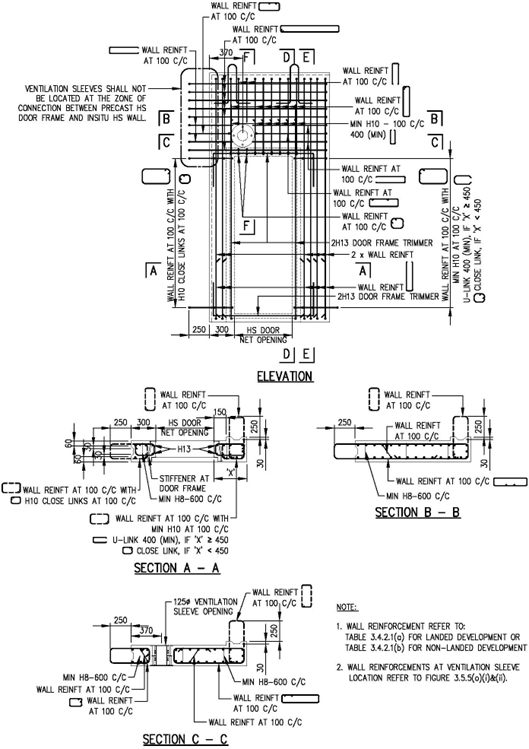
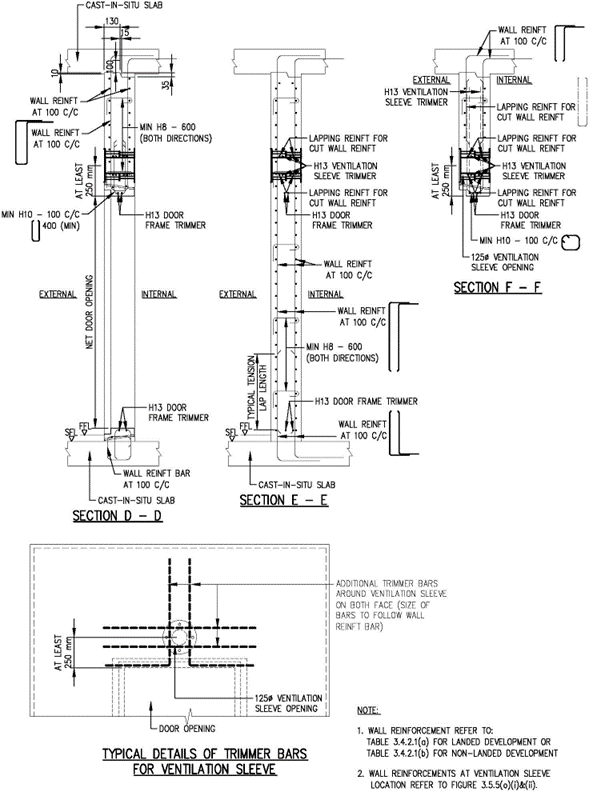
FIGURE 3.5.4 (f) Details of HS wall reinforcement bar near HS door
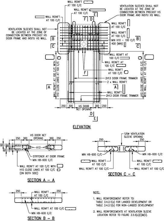
FIGURE 3.5.4 (g) Typical details of embedded conduit in HS wall
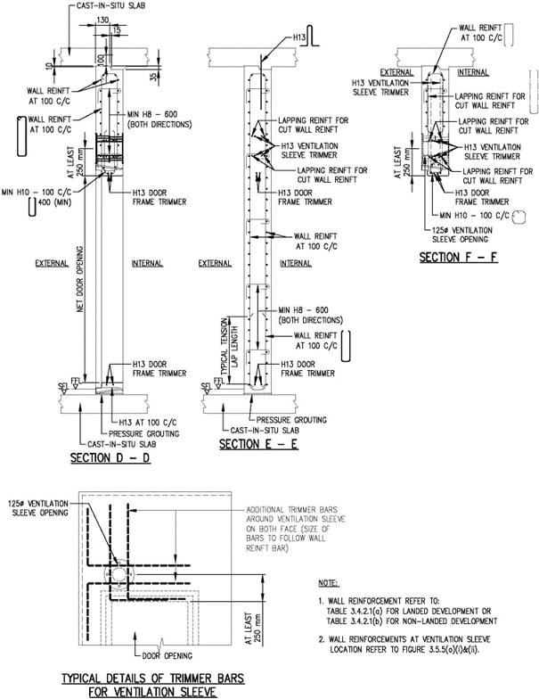
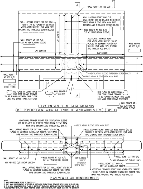
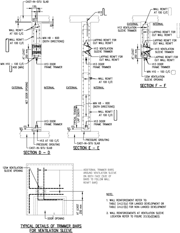
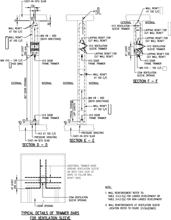
FIGURE 3.5.4 (h) Typical details of trimmer bars for ventilation sleeve
FIGURE 3.5.4 (i) Typical details of trimmer bars for wall recess
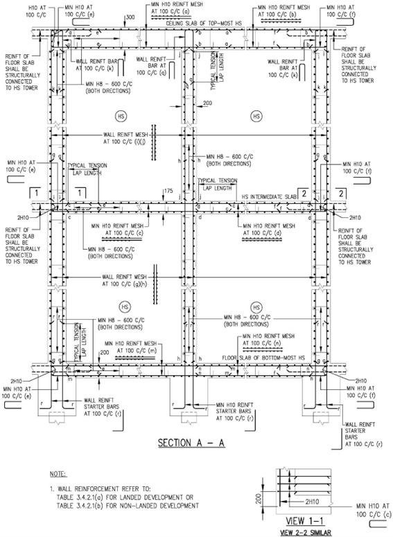
FIGURE 3.5.4 (j) Details of shear links in HS slabs/walls
F

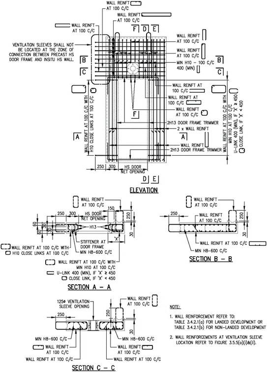
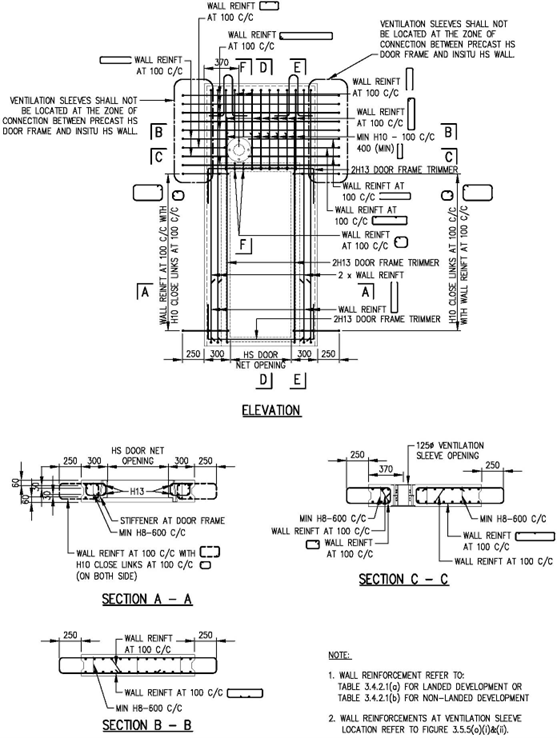
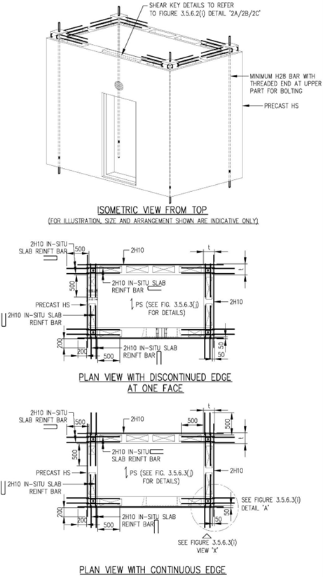
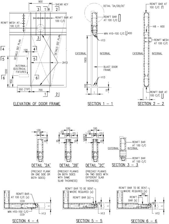
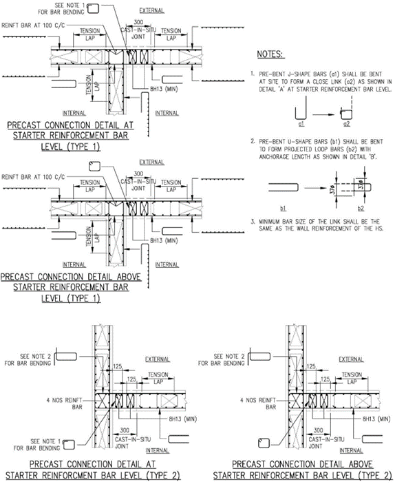
3.5.5 Precast HS Door Frame Panel

3.5.5 Precast HS Door Frame Panel
FIGURE 3.5.5 (a) Plan of HS with pre-cast HS door frame panel (Type 1)
FIGURE 3.5.5 (b) Details and Sections of pre-cast HS door frame panel with ventilation sleeve above it (Type 1)
FIGURE 3.5.5 (c) Sections of pre-cast HS door frame panel with ventilation sleeve above it (Type 1)
FIGURE 3.5.5 (d) Details and Sections of pre-cast HS door frame panel with ventilation sleeve at its side (Type 1)
FIGURE 3.5.5 (e) Sections of pre-cast HS door frame panel with ventilation sleeve at its side (Type 1)
FIGURE 3.5.5 (f) Plan of HS with pre-cast HS door frame panel (Type 2)
FIGURE 3.5.5 (g) Details and sections of pre-cast HS door frame panel with ventilation sleeve above it (Type 2)
FIGURE 3.5.5 (h) Sections of pre-cast HS door frame panel with ventilation sleeve above it (Type 2)
FIGURE 3.5.5 (i) Details and sections of pre-cast HS door frame panel with ventilation sleeve at its side (Type 2)
FIGURE 3.5.5 (j) Sections of pre-cast HS door frame panel with ventilation at its side (Type 2)
FIGURE 3.5.5 (k) Plan of HS with pre-cast HS door frame panel (Type 3)
FIGURE 3.5.5 (l) Details of pre-cast HS door frame panel (Type 3)
FIGURE 3.5.5 (m) Sections of pre-cast HS door frame panel (Type 3)
FIGURE 3.5.5 (n) Sections of pre-cast HS door frame panel (Type 3)
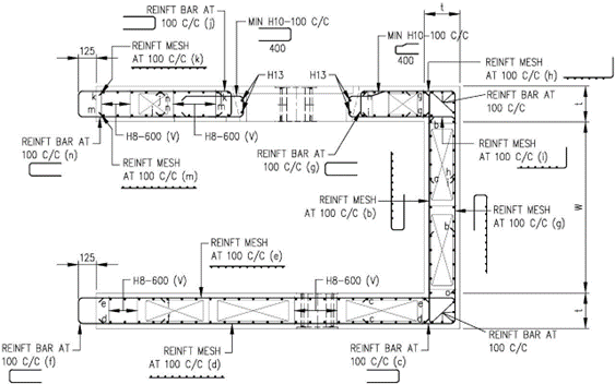
FIGURE 3.5.5 (o)(i) Typical details and sections of reinforcements at ventilation sleeve location
FIGURE 3.5.5 (o)(ii) Typical details and sections of reinforcements at ventilation sleeve location
F

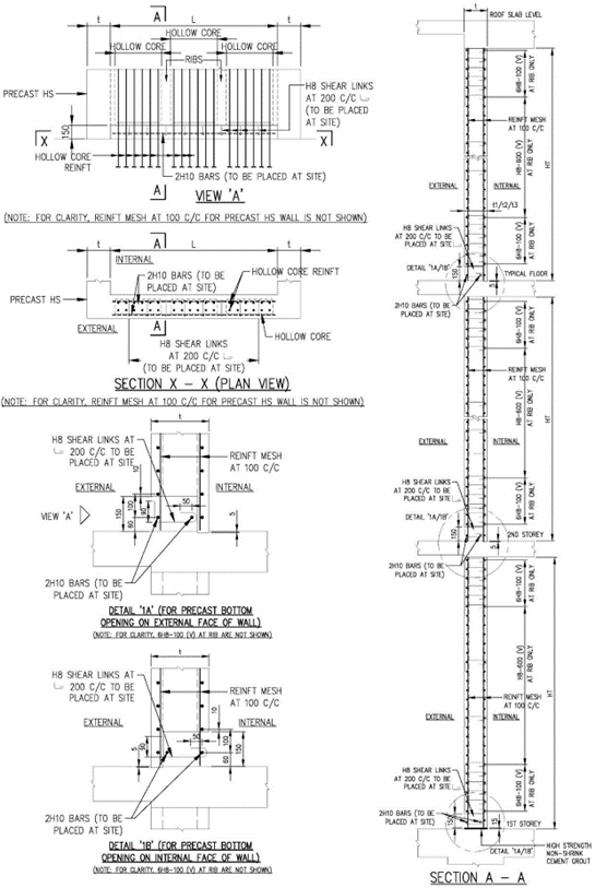
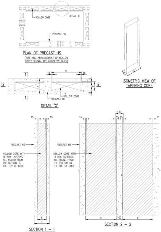
3.5.6 Precast HS Hollow Core

a. Precast HS Hollow Core shall comply with the dimensions, reinforcement bar and connection detail requirements as shown in the following tables and figures.

b. For precast HS walls abutting lift walls and requiring additional 50mm thickness, the hollow core sizes shall remain to be same (Table 3.5.6(b)) as the precast HS walls with normal thickness. The concrete cover thickening shall occur at the common wall between HS wall and lift wall.

F
3.5.6 Precast HS Hollow Core
TABLE 3.5.6 (a) Dimension of Precast Hollow Cores HS
TABLE 3.5.6 (b) HS wall thickness and Sizes of Hollow Cores
TABLE 3.5.6 (c) Minimum Reinforcement Bars in Hollow Cores
TABLE 3.5.6 (d) Minimum Thickness of Slab and Reinforced Concrete Topping
FIGURE 3.5.6.1 (a) Precast HS with HS door on longer wall and one of the ventilation sleeves above the door (Type 1)
FIGURE 3.5.6.1 (b) Precast HS with HS door on shorter wall and one of the ventilation sleeves above the door (Type 2)
FIGURE 3.5.6.1 (c) Precast HS showing ventilation sleeve and internal electrical fixtures on the same wall (Type 3)
FIGURE 3.5.6.1 (d) Precast HS and C-shaped Precast HS connected at the shorter wall and with HS door on longer walls (Type 4)
FIGURE 3.5.6.1 (e) Precast HS and C-shaped Precast HS connected at the longer wall and with HS door on longer walls (Type 5)
FIGURE 3.5.6.1 (f) Precast HS and C-shaped Precast HS connected at the longer wall and with HS door each on the longer wall and shorter wall (Type 5A)
FIGURE 3.5.6.1 (g) Precast HS and C-shaped Precast HS with connection between longer and shorter walls respectively and with HS doors on longer wall (Type 6)
FIGURE 3.5.6.1 (h) Precast HS and C-shaped Precast HS with connection between longer and shorter walls respectively and with HS door each on longer wall and shorter wall (Type 6A)
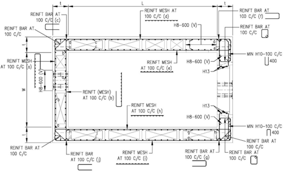
FIGURE 3.5.6.2 (a) Reinforcement Bar Details of Wall, Rib and Blast Door on Long Wall of Precast HS
FIGURE 3.5.6.2 (b) Reinforcement Bar Details of Wall, Rib and Blast Door on Short Wall of Precast HS
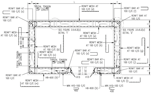
FIGURE 3.5.6.2 (c) Plan and Section of Rib with Shear Links
FIGURE 3.5.6.2 (d) Reinforcement Bar Details of Wall and Rib for C-Shaped Precast HS
FIGURE 3.5.6.2 (e) Reinforcement Bar Details of Wall and Rib for C-Shaped Precast HS
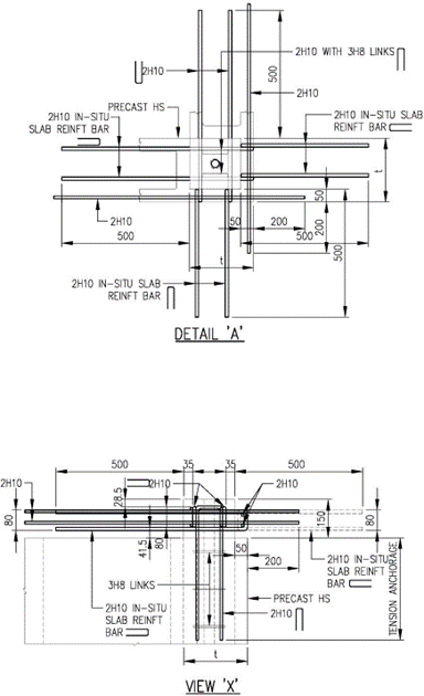
FIGURE 3.5.6.2 (f) Connection Details Between Two Precast HS
FIGURE 3.5.6.2 (g) Connection Details Between Precast HS and Cast In-Situ Wall/ Column
FIGURE 3.5.6.2 (h) Reinforcement Bar Details at Concrete Rib
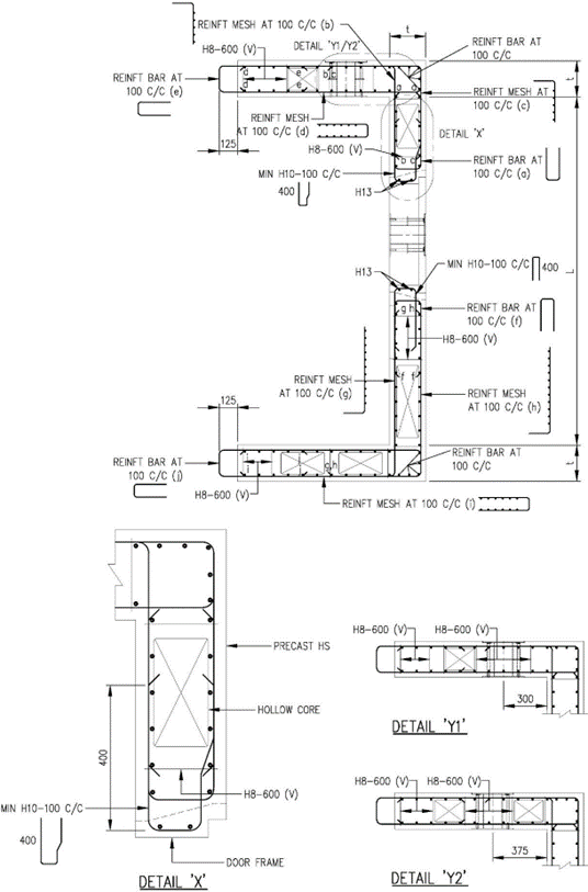
FIGURE 3.5.6.2 (i) Details of Reinforcement Bars near Door Frame and at Electrical Fixtures on Internal Face of Precast HS
FIGURE 3.5.6.2 (j) Details of Trimmer Bars for Ventilation Sleeve
FIGURE 3.5.6.2 (k) Details of Trimmer Bars for Wall Recess for HS Door Handle
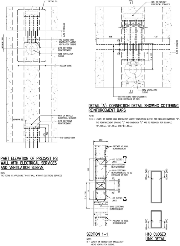
FIGURE 3.5.6.2 (l) Precast HS Wall with Connection Details for Ventilation Sleeve and Electrical Services
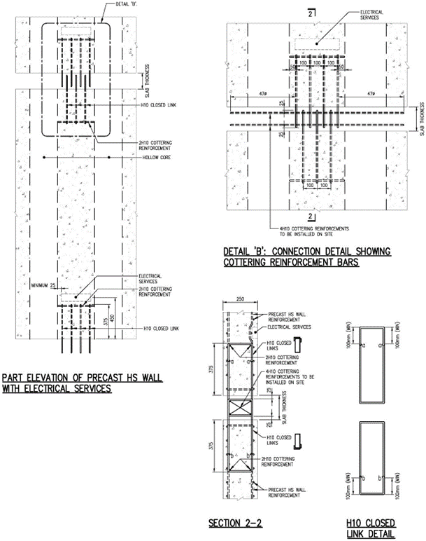
FIGURE 3.5.6.2 (m) Precast HS Wall with Connection Details for Electrical Services
FIGURE 3.5.6.2 (n) Cage Reinforcement Bars in Hollow Cores
FIGURE 3.5.6.2 (o) Reinforcement Bars Lapping in Hollow Cores
FIGURE 3.5.6.2 (p) Hollow Cores Shape
FIGURE 3.5.6.3 (a) Isometric View of Precast HS with Bolts and Steel Plates Connection (Type 1 without Blocked-Out for Beam)
FIGURE 3.5.6.3 (b) Isometric View of Precast HS with Bolts and Steel Plates Connection (Type 2 without Blocked-Out for Beam)
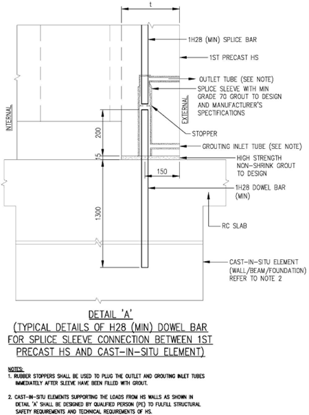
FIGURE 3.5.6.3 (c) Splice Sleeve Connection Details Between Precast HS and Cast In-Situ Element and Bolt Connection Details Between Two Precast HS
FIGURE 3.5.6.3 (d) Splice Sleeve Connection Details for Precast HS Tower
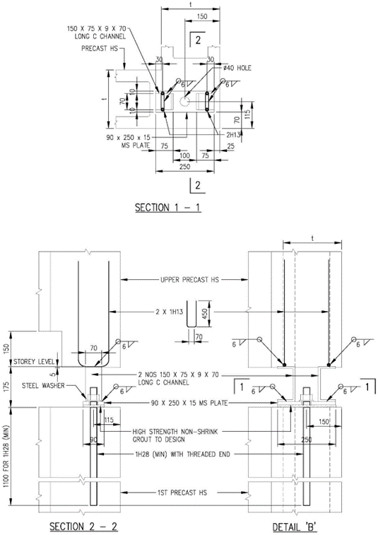
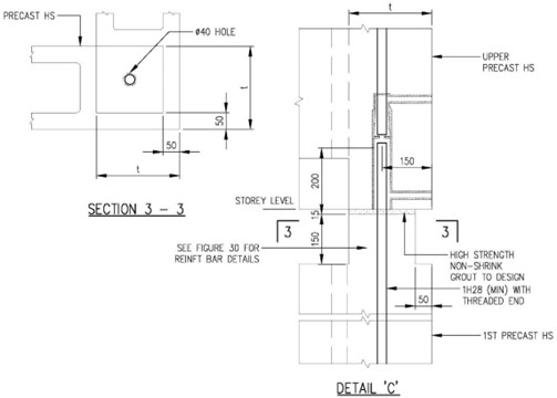
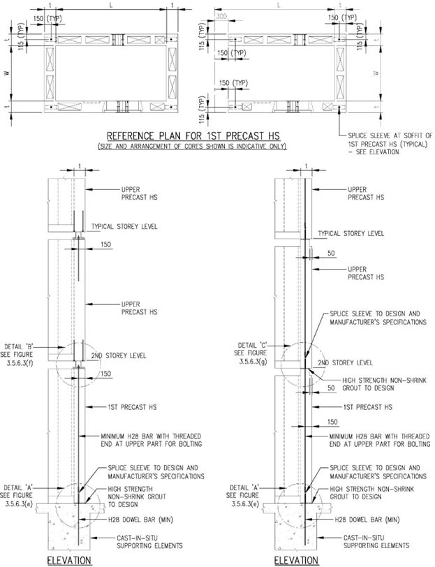
FIGURE 3.5.6.3 (e) Connection Details Between lower and upper Precast HS (Detail A)
FIGURE 3.5.6.3 (f) Connection Details Between lower and upper Precast HS (Detail B)
FIGURE 3.5.6.3 (g) Connection Details Between lower and upper Precast HS (Detail C)
FIGURE 3.5.6.3 (h) Isometric View of Precast HS with Splice Sleeve Connection (Reinforcement Bars Details)
FIGURE 3.5.6.3 (i) Detail of Splice Sleeve Connection
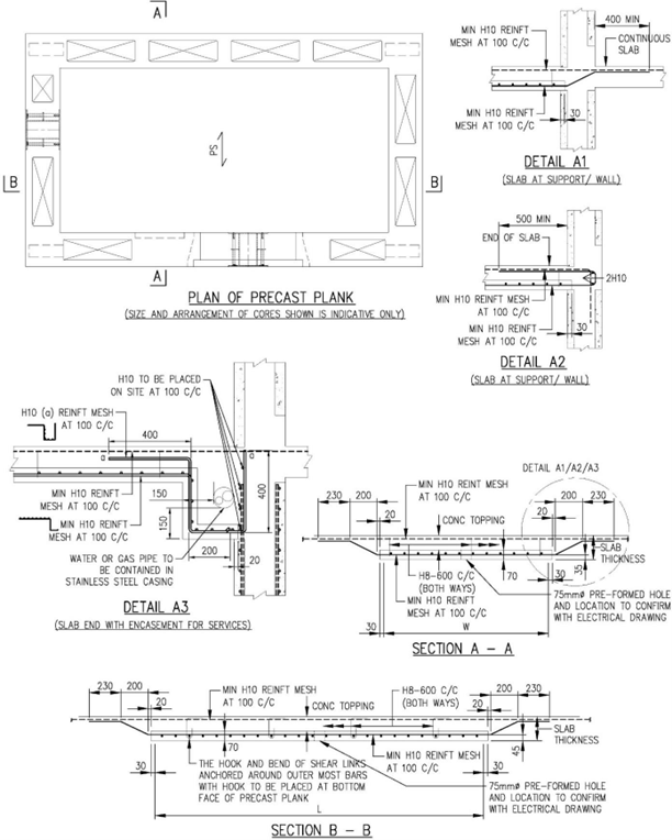
FIGURE 3.5.6.3 (j) Details of Precast Plank (marked as PS) and Concrete Topping
FIGURE 3.5.6.3 (k) Electrical Fixtures on External Face of Precast HS
FIGURE 3.5.6.3 (l) Isometric View of Precast HS with Bolts and Steel Plates Connection (Type 3 with Blocked-Out for Beam)
FIGURE 3.5.6.3 (m) Isometric View of Precast HS with Bolts and Steel Plates Connection (Type 4 with Blocked-Out for Beam)
F

3.5.7 Joints

a. Construction joints in an HS tower shall be properly executed to ensure that the strength and the integrity of the HS are not impaired. The type and location of joints shall be specified in the design after taking into account the following:

i. A concrete kicker, if provided, shall not be more than 100mm high.

ii. All HS walls located within each storey shall be cast in one operation.

b. Expansion joints or contraction joints in the HS tower are not permitted.

3.5.8 PPVC Connections

The load transfer of these PPVC modules shall not adversely affect the structural integrity and protection level of the HS in any way.

a. There shall not be load transfer from PPVC modules (transferring shear, bending moment, etc) onto HS wall unless the connection has been checked for structural adequacy and it is confirmed such load does not compromise the HS protective design.

b. There shall be no recess in HS wall that cause reduction in HS wall thickness due to PPVC connections.